Wir schaffen außergewöhnlichen Wohnraum in exklusiven Anwesen und gerne auch als Barrierefrei!
Schauen Sie sich in Ruhe auf unsere aktuellen Projekte an.
Wenn Sie dabei fragen haben oder einen Besichtigungstermin wünschen dann wenden Sie sich auf uns.
Wir verzaubern bewohnbare Objekte aus leerstehende Gewerbeobjekte.
Anbei sehen Sie wie es vorher und nachher mit der Planung aussieht.
Aktuelle Projekte
- Frammersbach bei Aschaffenburg
Umnutzung ehemaliger Raumausstatter in 15 Wohneinheiten. Hiervon werden 11 Wohneinheiten barrierefrei ausgebildet. - Schlitz bei Fulda
Umnutzung ehemaliges Küchenstudio in 14 Wohneinheiten. Hiervon werden 10 Wohneinheiten barrierefrei, bzw. behindertengerecht ausgebildet. - Hanau Kesselstadt
Ehemalige Druckerei mit Redaktion. Umnutzung in 7 Wohneinheiten. - Hanau Innenstadt
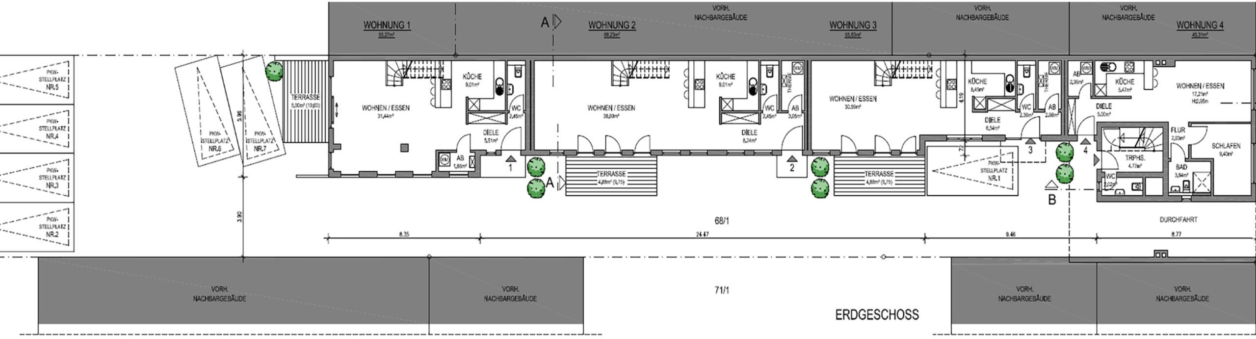
Ehemaliges Sanitär und Heizungsfirma, Umnutzung in 4 Wohneinheiten und drei Einfamilien-Häuser. - Jossgrund im Spessart
Umnutzung einer Gaststätte mit Übernachtungsmöglichkeiten in Gastronomie ( Eiscafe und Bistro ) und 8 Ferienwohnungen. - Jossgrund im Spessart
Umnutzung eines Gaststätte und Fitnessstudio in insgesamt 11 Wohneinheiten ( Barrierefrei ) und einem Nahkauf.

